Yksilölliset vuokrattavat toimitilat
Monipuoliset tilaratkaisut palvelevat erikokoisia yrityksiä
MaarinPorttiin valmistuvat modernit toimitilat ovat muunneltavia ja ne suunnitellaan yksilöllisesti vastaamaan yrityksesi tarpeita. Tulevalla asiakkaalla on mahdollisuus vaikuttaa oman toimistonsa toimitilaratkaisuihin sekä materiaalivalintoihin.
Tilavaihtoehtoja
Muuntojoustavat kerroskokonaisuudet
MaarinPorttiin on helppo räätälöidä yrityksesi tarpeiden mukainen tilakokonaisuus. Voit vuokrata yhden kerroksen tai vaikka kaikki kuusi kerrosta, eli parhaimmillaan voit saada käyttöösi koko kiinteistön.
1. KERROS
Palvelut ja yhteiset toiminnot
Kiinteistön sisääntulokerroksessa sijaitsevat aulapalvelu sekä ravintola Factory. Tämän lisäksi asiakkaiden käytettävissä ovat myös vuokrattavat neuvottelutilat, auditorio sekä kuntosali. Lopullinen palveluvalikoima määräytyy asiakkaiden toiveiden mukaan.
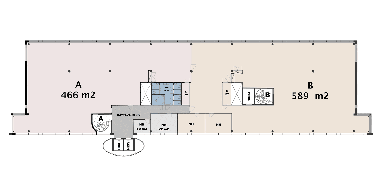
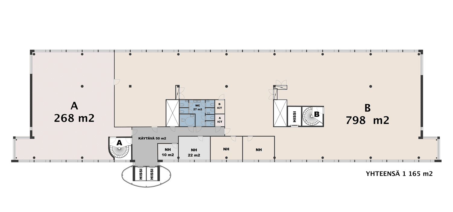
2.-5. KERROS
Monipuoliset toimitilakerrokset
Kerrokset 2-5 ovat suunniteltu muuntojoustaviksi toimistokerroksiksi. Kerrokset ovat valoisia kokonaan uusitun julkisivun ansiosta. Kerrokset voidaan helposti jakaa jopa 4 osaan, eri osastoiksi tai eri toimijoiden kesken.
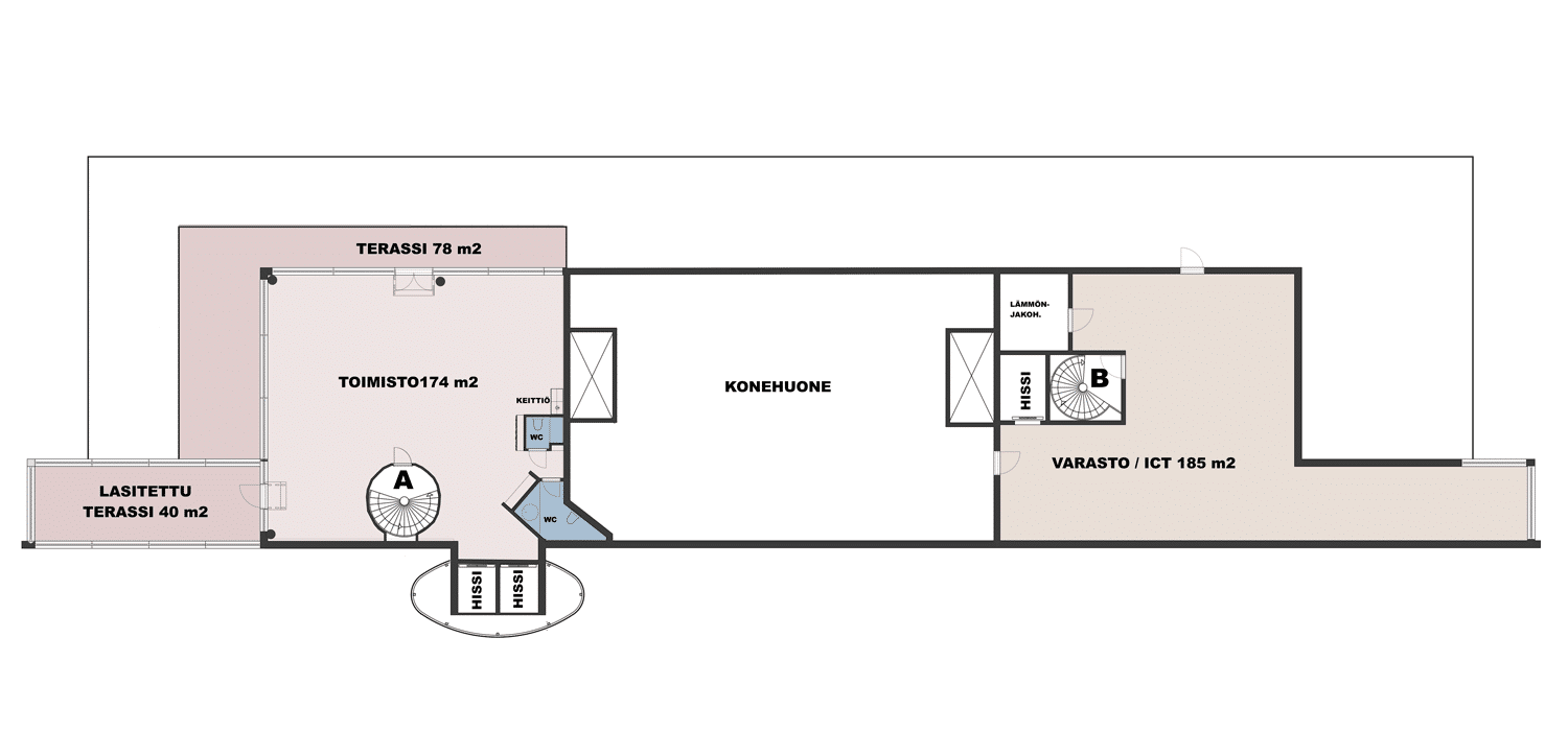
6. KERROS
Uniikkia tilaa monille mahdollisuuksille
Kiinteistön ylimpään kerrokseen on mahdollista toteuttaa yrityksesi tarpeiden ja toiveiden mukainen tilaratkaisu, 6. kerros voidaan keskittää esimerkiksi wellness-palveluille. Kerroksesta löytyy suuri näköalaterassi sekä katettu terassi, jotka mahdollistavat rentoutumishetken töiden lomassa.



